Page suivante
Page précédente
Deauville (14800)

Rez de jardin

250 000 €
Réf DEAUV 1

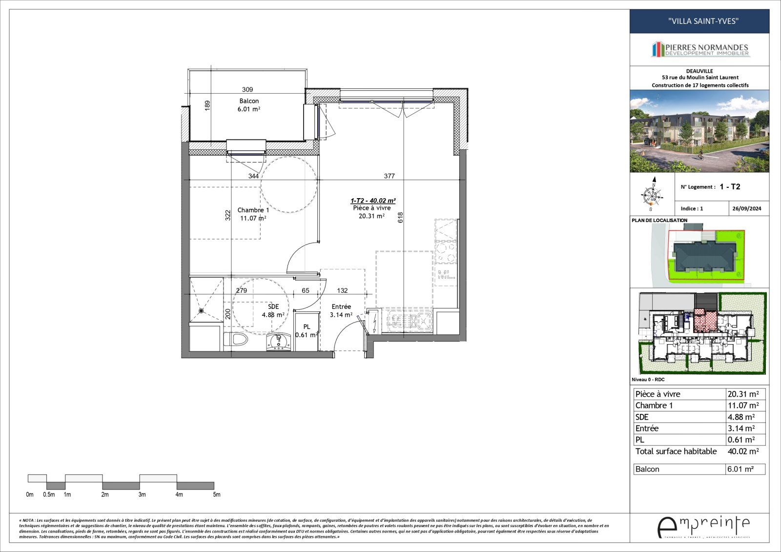
VILLA SAINT-YVES À DEAUVILLE - BEL APPARTEMENT 2 PIECES N°1 – 40 m2 – Balcon

Appartement neuf comprenant : Entrée, séjour cuisine 20 m2 avec balcon 6m2, 1 belle chambre, dressing, SDB équipée douche extra plate, WC, parking sous-sol et cave.

RE 2020 – Chauffage individuel

Bilan énergétique

Diagnostics énergetiques
A propos de ce bien Caractéristiques de ce bien
  • Surface 40 m²
  • carrez 40 m²
  • séjour 20 m²
  • 1 chambre(s)
  • 1 salle(s) de bain
  • cuisine américaine
  • Chauffage individuel : radiateur (electrique)
  • exposition Nord
  • 2 étage(s)
  • vue Jardin
  • cave
  • balcon
  • visiophone
  • interphone
  • quartier Côte Fleurie
  • accès handicapé

Info copro

Copropriété
  • Copropriété Oui

Financier

Informations financières
Prix de vente honoraires TTC inclus 250 000 €

Autour du bien

Découvrez le quartier

Simulation

Calcul des mensualités
* Champs obligatoires
Patricia MIEUSEMENT Négociatrice