Page suivante
Page précédente
Touques (14800)

Appartement

340 500 €
Réf OAP10001182

Touques, partie intégrante et dynamique de l'agglomération de Deauville-Trouville bénéficie de ce fait de ses nombreux équipements et animations. Notre programme, le Clos Aristide est situé dans la partie basse de la ville, à proximité immédiate du centre historique (mairie à 550 mètres). Les principaux commerces sont accessibles à pied dans un rayon de quelques centaines de mètres seulement. Alliant cadre de vie privilégié et accès sécurisé, le Clos Aristide est une résidence à taille humaine composée d'appartements du studio au 3 pièces. Surfaces généreuses et prestations de qualité. Prenez rendez-vous avec notre équipe afin de découvrir votre futur chez vous.

Bilan énergétique

Diagnostics énergetiques
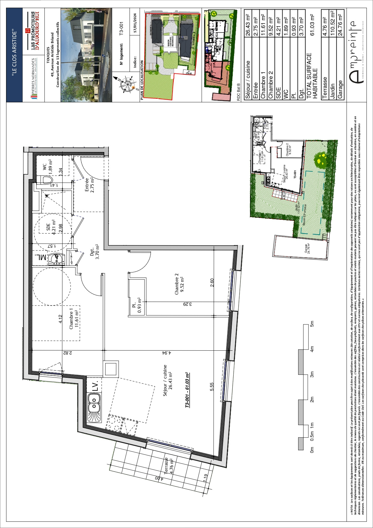
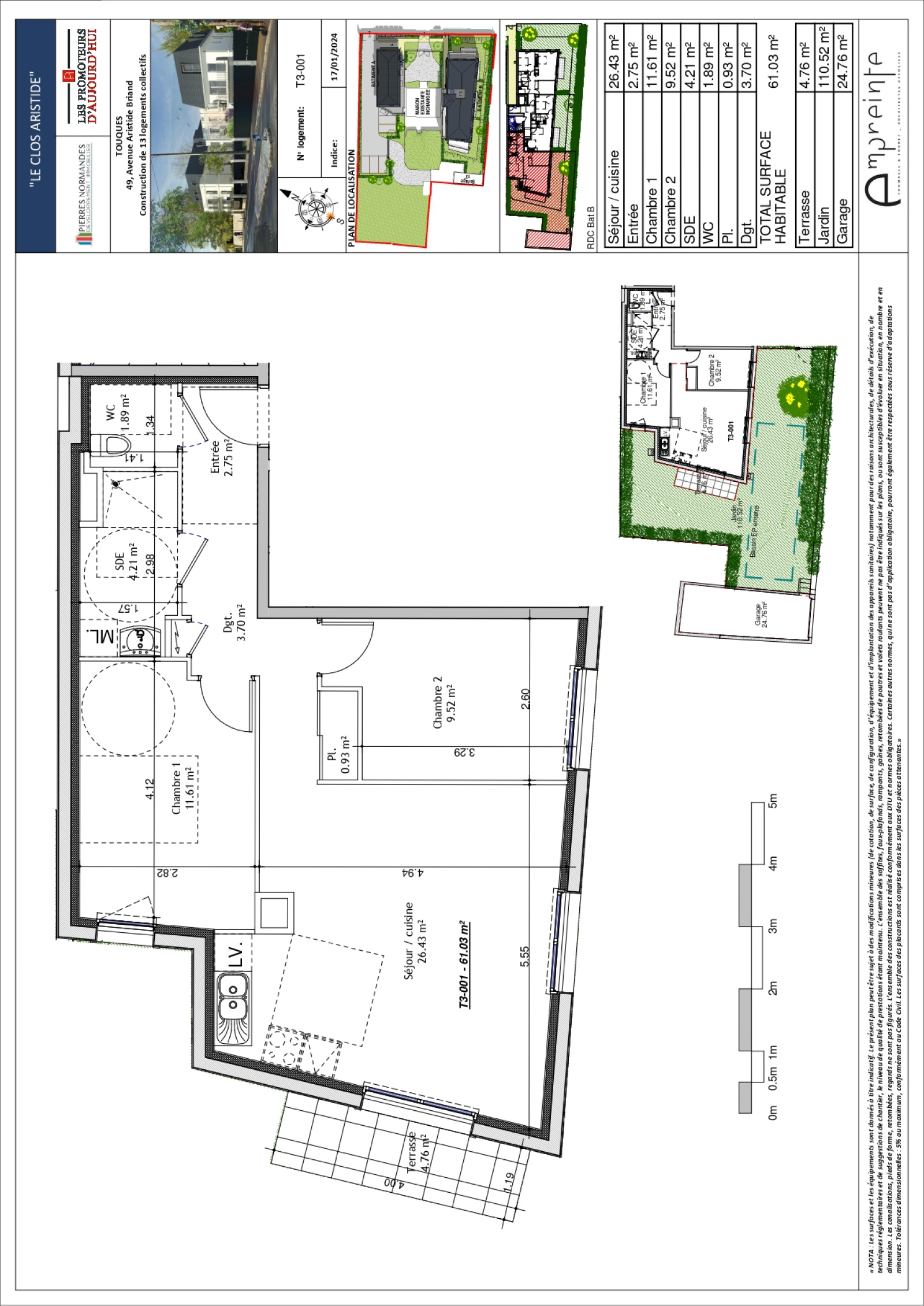
A propos de ce bien Caractéristiques de ce bien
  • Surface 61,03 m²
  • 2 chambre(s)
  • 1 salle(s) de bain
  • 1 parking(s)

Financier

Informations financières
Prix de vente honoraires TTC inclus 340 500 €

Autour du bien

Découvrez le quartier

Simulation

Calcul des mensualités
* Champs obligatoires
Patricia MIEUSEMENT Négociatrice